Стоимость 22.01.2024г. - 147000руб. Автор – конструктор фирмы ДЭЗАЛТ Суханов Эдуард
К нам обратилась повторно семья из Мытищ, с просьбой сделать два шкафа в их новую квартиру. Мы им уже делали мебель ранее, но это было очень давно, в их старую квартиру.
Теперь у них новая квартира с панорамными окнами и с хорошим видом.
Им нужен был шкаф-купе в спальню и распашной шкаф. Шкаф-купе мы уже сделали и показали на нашем сайте, переходите по ссылке — Светящийся шкаф-купе.
Теперь настало время показать распашной шкаф, который находится как бы напротив купейного шкафа.
Командовала всем процессом Ольга, её супруг тоже участвовал в конструировании мебели, но посредственно.
Главная просьба заказчицы, это чтобы распашной шкаф был выкрашен в точно такой же цвет что и прикроватные тумбы, которые они уже купили.
При помощи колеровочного веера, мы подобрали самый подходящий цвет эмали и записали её номер.
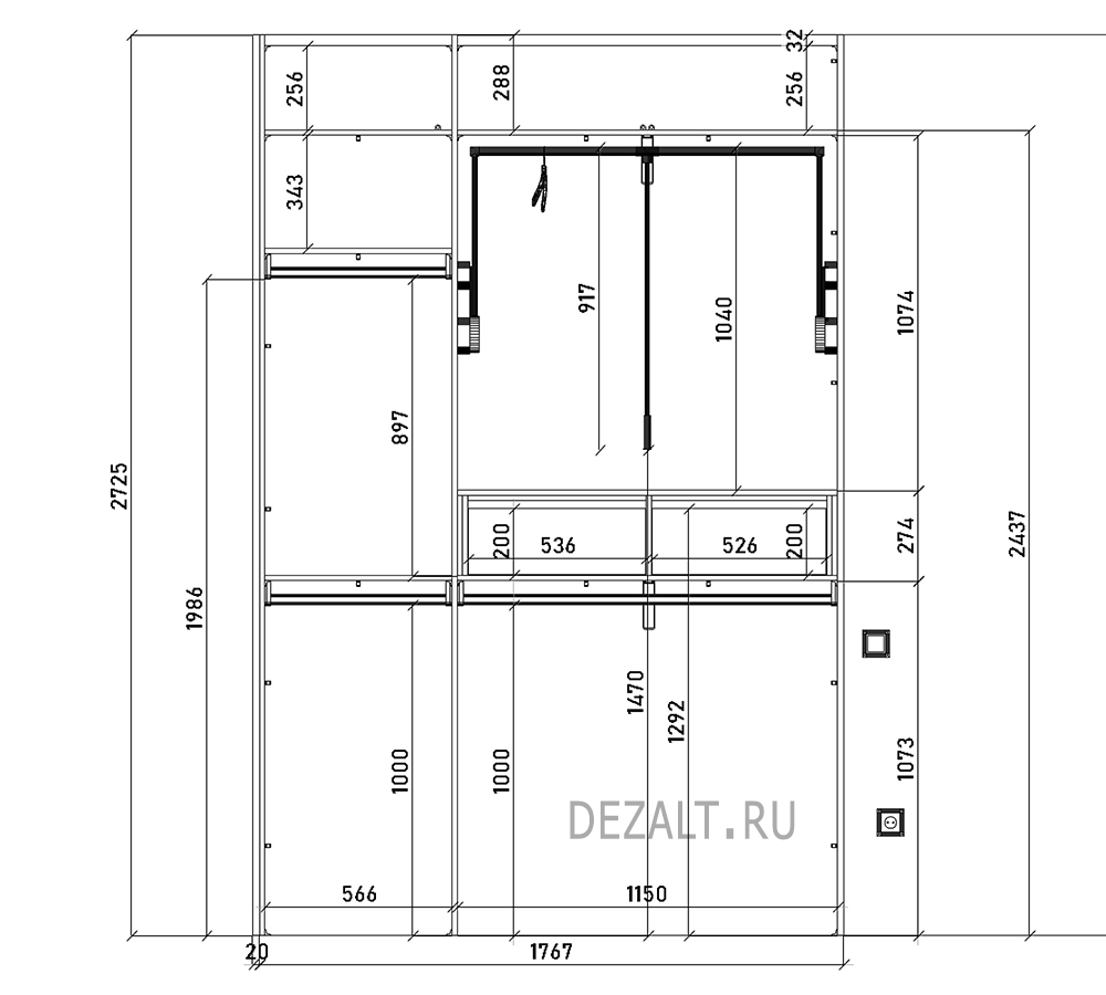
По конструкции шкаф был достаточно простой. Ольга попросила сделать 3 штанги для коротких вещей, поставить один пантограф и сделать два выдвижных ящика для нижнего белья на уровне груди.
Вверху шкафа получились небольшие узкие антресольные полки. Кстати, на верхние дверки нам пришлось поставить по 3 мебельных петли. С одной стороны это выглядит некрасиво, но двери получились тяжелые и широкие, две петли долго бы не прослужили.
Корпус внутри мы сделали из ЛДСП фирмы «Эггер», цвет - «Коттон бежевый U113 ST9». Наружная оболочка шкафа, это двери и одна видимая боковина, сделаны из МДФ толщиной 19мм и окрашены эмалью под цвет NCS S 0804-G90Y.
В большие распашные двери мы врезали специальные корректоры против изгиба, потому что когда дверь широкая и высокая, она может получить изгиб в одну из сторон, наружу или вовнутрь. И чтобы это исправить, с внутренней стороны вставляются корректоры.
Шкаф встроенный, у него нет задней стенки, пола и потолка.
В комнате натяжной потолок, закладной не было, но мы умеем делать шкафы без щелей между корпусом и потолком. Примером служит этот шкаф.
С левой стороны нам пришлось сделать отступ от стены и закрыть щель планкой-добором. Если б мы этого не сделали, левая дверь не смогла бы полностью открываться, мешался бы плинтус внизу, либо, нам пришлось бы делать высокий цоколь у шкаф и уменьшать двери по высоте. Заказчики решили что этот вариант, как мы сделали, будет лучше.
Сначала мы сделали каркас шкафа из ЛДСП. Затем сняли размеры для изготовления дверей и боковины. Двери и боковину из МДФ мы сами не изготавливаем, а заказывали у другого производителя, кто занимается подобным производством. Ждать фасады пришлось долго, около месяца, но об этом мы договаривались с клиентом заранее, они об этом знали.
Пока не было дверей и боковины, семья пользовалась шкафом. Когда мы привезли детали МДФ для установки, вещи из шкафа они убрали.
Оцените итог по фотографиям и посмотрите видеообзор, в котором Григорий покажет результат, того что у нас вышло.

































