Стоимость 28.01.2024г. - 107000руб. Автор – конструктор фирмы ДЭЗАЛТ Суханов Эдуард
Эту небольшую гардеробную мы создали для Дмитрия, нашего постоянного заказчика.
Впервые он обратился к нам в 2014 году. Тогда мы изготовили для него шкаф-купе для книг и шкаф в прихожую.
В то время Дмитрий переехал в Мытищи, в квартиру, купленную в ипотеку. Мы были удивлены количеством привезённых им книг, ведь уже в 2014 году люди редко покупали бумажные издания, а у него собралась настоящая библиотека.
Из общения сразу стало ясно: перед нами эрудированный человек с обширными знаниями, несмотря на молодой возраст. Таких обычно называют «ботаниками».
В 2024 году Дмитрий приобрёл просторную квартиру в центре Москвы и вновь пригласил нас для обустройства гардеробных. Спустя 10 лет он не забыл о нас — это было особенно приятно.
Оказалось, что Дмитрий дослужился до серьёзной должность в крупной компании. Мы искренне порадовались за его карьерные успехи.
Предлагаем ознакомиться с мастер-гардеробной (гардеробной в спальне), которую мы создали для него в новой квартире. О большой общей гардеробной расскажем в отдельной публикации.
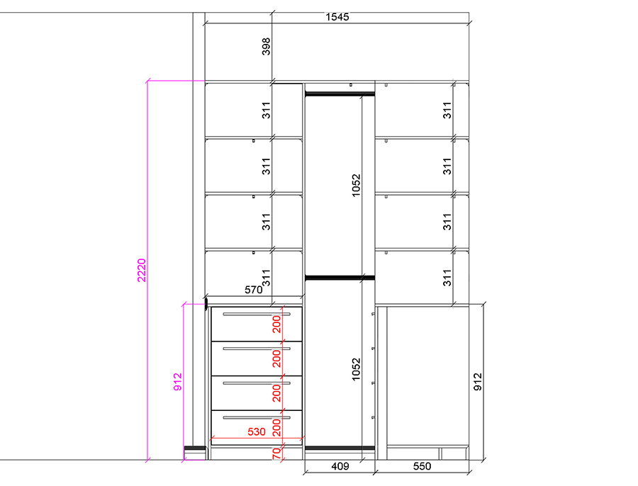
Размеры помещения для хранения одежды — 1,5 на 1,5 метра. Входная дверь расположена слева, поэтому оптимальным решением стала Г-образная конструкция.
Мы предложили разместить справа колонку с полками и выдвижными ящиками, а остальное пространство занять антресолями и штангами. Однако заказчик пожелал увеличить количество ящиков и полочек. В связи с этим мы добавили ещё одну колонку напротив входной двери. В углу разместили несколько штанг.
По просьбе Дмитрия оборудовали две полочки для обуви под штангой.
Ниже представлены чертежи проекта.
Несмотря на компактные размеры гардеробной, монтаж мебели проходил не быстро. Причина — большая кровать в спальне, расположенная перед входом в гардеробную.
Полноценную фотосъёмку в помещении размером 1,5 на 1,5 метра невозможно выполнить даже с широкоугольным объективом, поэтому рекомендуем ознакомиться с видеообзором.



















