Стоимость 28.01.2024г. - 164000руб. Автор – конструктор фирмы ДЭЗАЛТ Суханов Эдуард
Это вторая гардеробная для Дмитрия, о первой я рассказывал в предыдущей публикации — «Компактная мастер-гардеробная».
Второй проект значительно масштабнее предыдущего. Помещение имеет размеры около 260×200 см и дополняется нестандартной четырёхугольной конструкцией. За основу мы взяли две стены с прямым углом, ориентируясь на них при проектировании.
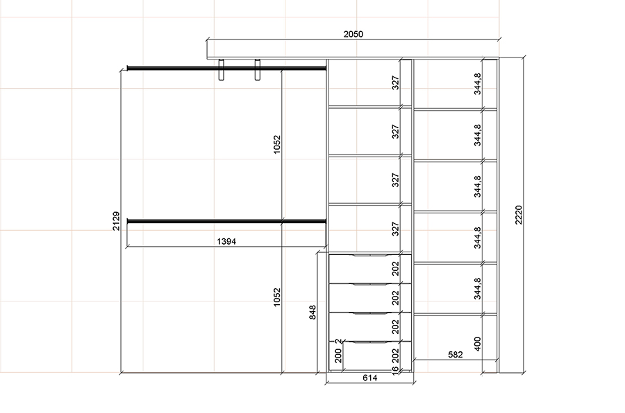
Совместно с заказчиком мы разработали систему из трёх штанг для верхней одежды на плечиках, восьми ящиков для белья и нескольких рядов полок. В верхней части сформировалась вместительная Г-образная антресоль.
Для обеспечения доступа к электрическому щитку на левой стене мы отказались от установки стойки из ЛДСП перед ним, заменив её вертикальной штангой. Такое решение позволяет беспрепятственно подходить к щитку и выполнять необходимые манипуляции. Штангу решили не закреплять на полу, чтобы не повредить плитку. К тому же Дмитрий отметил возможность будущих изменений в развёрнутом углу с последующим удалением штанги. Если он решит убрать штангу, потребуется лишь демонтировать бабышку из ЛДСП, при этом плитка останется неповреждённой.
Гардеробная выполнена как встроенный комплекс, который невозможно разобрать на отдельные секции и переместить. Стойки адаптированы под неровности стен, а завершающие полки отсутствуют. Конструкция создана по индивидуальным чертежам специально для этого помещения.
Подобная встроенная мебель обладает рядом преимуществ перед каркасными секциями.
Во-первых, она изначально прочнее корпусной. Каждая полка фиксируется к стене с помощью дюбеля и самореза. Отсутствует качание и расшатывание элементов. Благодаря этому механизмы ящиков сохраняют работоспособность дольше обычного.
Во-вторых, благодаря ручной подгонке, все стойки и полки прилегают к стенам максимально плотно, что выглядит эстетично. Между корпусами и стенами нет зазоров.
Третье преимущество заключается в отсутствии ограничений при изготовлении мебельных элементов. Мы используем крупноформатные листы ЛДСП размером 2800×2070 мм, что даёт возможность создавать не только прямоугольные, но и фигурные детали. Обратите внимание на левую сторону гардеробной, где мы выполнили скругление антресольных полок.
Ниже представлен видеообзор данной гардеробной.





















