Стоимость 12.02.2024г. - 130000руб. Автор – конструктор фирмы ДЭЗАЛТ Суханов Эдуард
Обратилась семья из Москвы: они закончили ремонт в квартире и нуждались в мебели для прихожей. Ситуация типичная — пространство ограничено, необходимо разместить место для обуви и вешалки для одежды, организовать хранение так, чтобы всё было под рукой, но не создавало беспорядка, и при этом выглядело эстетично.
К сожалению, не могу точно вспомнить, как мы пришли к финальному варианту.
Возможно, я сразу предложил это решение, а может, клиенты дали конкретные рекомендации — первоначальные схемы не сохранились.
В проекте учтены несколько важных особенностей.
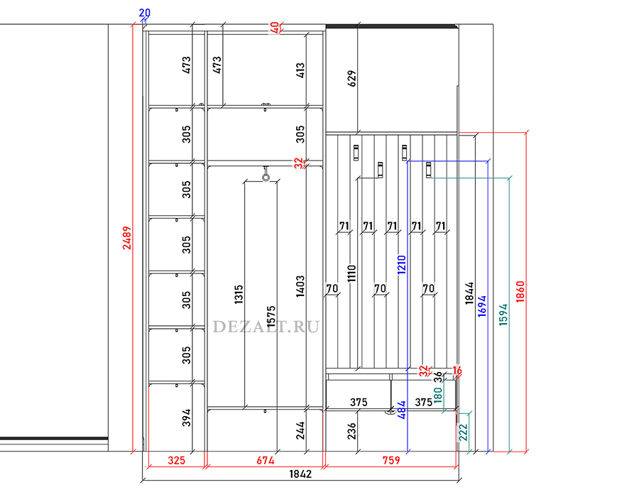
Например, отдельно стоящий шкаф с зеркальной дверью. В прихожей обязательно нужно зеркало, но повесить его некуда из-за нехватки места. Мы решили наклеить зеркало на распашную дверь шкафа. Для надёжности установили девять петель, а чтобы зеркало не деформировало дверь после высыхания клея, с внутренней стороны врезали два итальянских корректора. В результате семья получила полноценное большое зеркало.
Внутри одностворчатого шкафа мы организовали вырез для электрического щитка и разместили роутер для интернета. Я предлагал перенести розетку со стены на боковину шкафа, чтобы она не находилась в глубине, но заказчик Артём настоял на вырезе без переноса.
С открытой секцией для одежды пришлось проявить изобретательность. Не хватало места для выдвижных ящиков и сиденья на тумбе для переобувания. Я предложил необычное решение — вынести сиденье наружу, на наличник входной двери. Хотя это противоречит правилам интерьерного дизайна, в условиях ограниченного пространства приходится искать нестандартные решения. Я подготовил чертежи и 3D-визуализации, и семья согласилась с предложением.
Основной трёхдверный шкаф имеет нестандартную глубину — всего 350 мм, что недостаточно для продольной штанги. Пришлось развернуть штангу поперёк шкафа, хотя это менее удобно в использовании.
На распашные двери шкафа мы установили только две ручки вместо трёх для более стильного внешнего вида. Средняя дверь открывается изнутри рукой.
Интересный момент возник с выбором цвета. Заказчики выбрали два очень похожих оттенка ЛДСП от компании «Эггер» — «Бело-серый» и «Светло-серый». На мой вопрос о целесообразности такого решения они ответили, что различают эти оттенки и им так нравится. Несмотря на отсутствие контраста между цветами, мы выполнили их пожелание. Для удобства во время производства я создал специальные схемы с более насыщенными цветами, чтобы не перепутать декоры.
В итоге совместными усилиями мы разработали оптимальную конструкцию, подобрали цвета, учли особенности электрики. Результат можно оценить по фотографиям и видео.
Ниже видео дубликат.



































