Стоимость 16.02.2024г. - 331000руб. Автор – конструктор фирмы ДЭЗАЛТ Суханов Эдуард
Ирине нужен был шкаф в длинный коридор, и она обратилась к нам за проектом. Семья состоит из четырёх человек, поэтому требовалось уместить много вещей.
Сразу озвучила пожелание: «Я хочу фасады из МДФ — белые, матовые и без ручек».
Мы предложили решение: вместо ручек сделать интегрированные — не сквозные вырезы для пальцев.
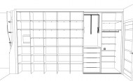
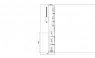
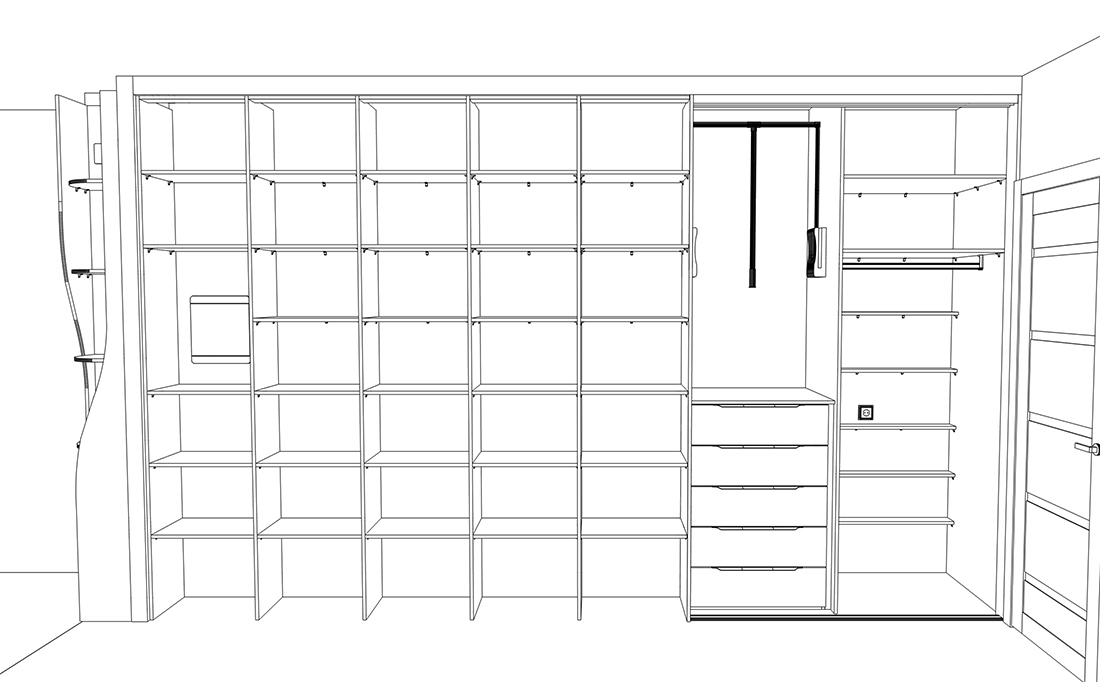
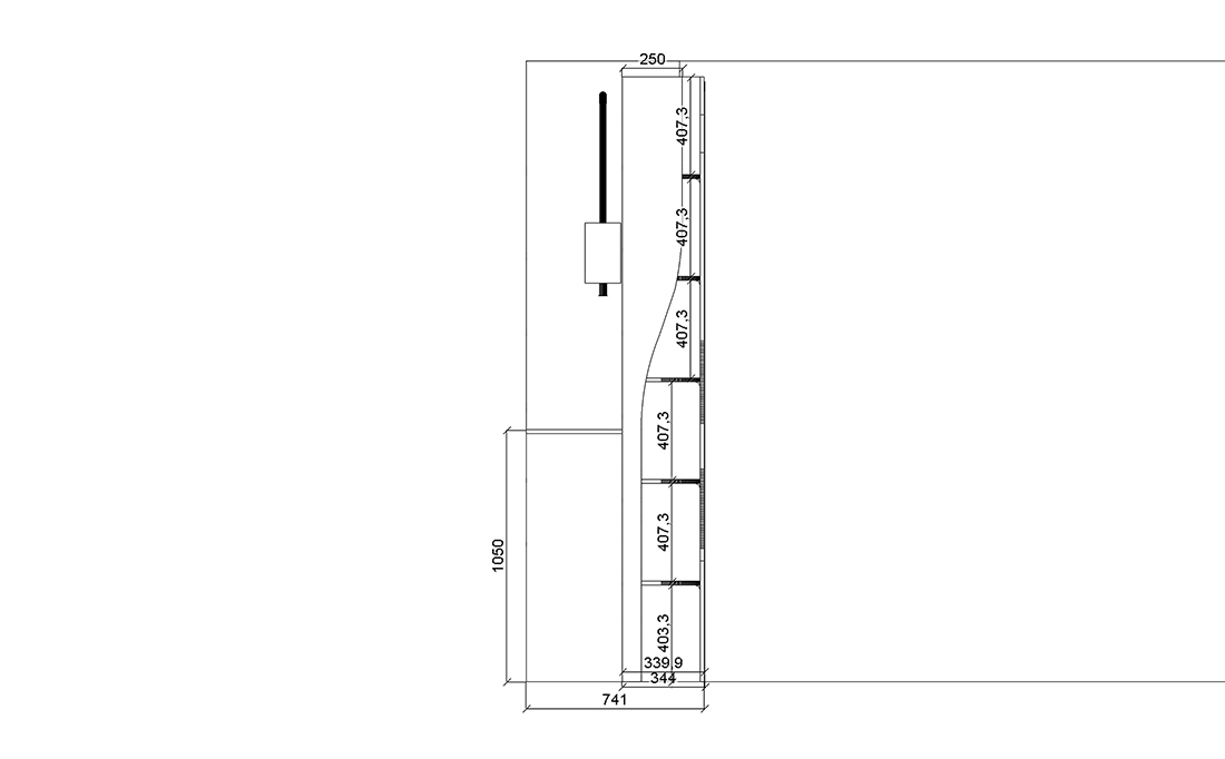
Простенки в коридоре оказались разной глубины, поэтому шкаф получился двухуровневым, с разными типами дверей. Там, где глубина 340 мм, запланировали распашные двери. Там, где 744 мм, — двери‑купе. Учли, что двери‑купе «съедают» 100 мм полезной глубины: внутри останется 640 мм для полок и одежды на плечиках.
Мы сделали несколько набросков будущего шкафа. Поэкспериментировали с вариантами дверей, ручек и общего оформления — и предложили Ирине разные решения.
Заказчица захотела установить у входа в квартиру фигурную колонку — с неё должен начинаться шкаф. Изготовить такую секцию несложно: делаем две идентичные фигурные боковины и разворачиваем друг напротив друга.
Ниже — чертежи утверждённого варианта. К этому решению мы пришли совместно с клиентом.
После того как чертежи были утверждены и договор подписан, мы приступили к работе.
Сначала изготовили каркасы и секции шкафов. Поскольку шкафы встроенные, у них нет пола, потолка и задних стенок. Многие детали подгоняли под неровности стен.
На возведение встроенных корпусов ушло несколько дней.
Когда корпуса были готовы, сняли размеры для изготовления распашных дверей и дверей‑купе.
Двери выполнили из МДФ толщиной 19 мм — это позволило сделать фрезеровку глубиной 3 мм.
Помимо декоративной фрезеровки, выполнили техническую — с внутренней стороны каждой двери. В неё вставили корректоры против изгиба. МДФ при длине более двух метров склонен изгибаться, а для дверей это критично: возникает ощущение, что фасад шкафа кривой. Корректоры выравнивают дверь, делая её идеально ровной.
Лицевую сторону дверей окрасили эмалью белого цвета с матовым эффектом — именно так, как хотела Ирина. Изнаночную сторону оставили в белом ламинированном исполнении: её мы не трогали.
Когда двери были готовы, привезли их и установили за один день.
На фото и видео окрашенные МДФ‑фасады не передают всей красоты — она заметна только вживую. Мы сделали множество снимков фасада под разными углами: на одном он кажется голубоватым, на другом — зеленоватым из‑за оттенка стен, на третьем — глянцевым, хотя глянца там нет вовсе. Такие фасады нужно видеть своими глазами.





























































