Стоимость 10.03.2024г. - 99800руб. Автор – конструктор фирмы ДЭЗАЛТ Суханов Эдуард
У нас есть клиенты, которые обращаются к нам не в первый раз. Я много раз приводил примеры таких работ на странице «Наши работы». Когда мы сделали мебель, проходит 3 года и более, и клиент обращается повторно. У людей меняются жизненные обстоятельства: кто-то дозаказывает мебель в другую комнату, кто-то поменял место жительства или купил еще одну квартиру. Екатерина — одна из таких клиентов.
Сначала мы сделали ей гардеробную в первую квартиру, а через несколько лет она обратилась к нам за гардеробной во вторую.
Забегая вперед, мы сделали в эту вторую квартиру не только гардеробную, но и шкаф-купе в прихожую, хозяйственный шкаф, и письменный стол с приставным шкафом. Это всё покажем позже, отдельными обзорами, но сейчас речь пойдет о гардеробной.
Екатерина прислала нам картинку и фото гардеробной, которую сделали ее соседи с точно такой же планировкой квартиры.
Она попросила изобразить что-то похожее, но в нашем стиле, как мы обычно делаем гардеробные — без задних стенок, пола и широких стоек в углах.
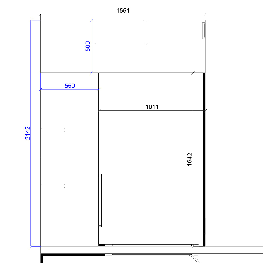
Вот что мы предложили ее семье: гардеробную с открытым углом. Это практически то же самое, но такая конструкция будет удобнее.
Во-первых, мы убрали вертикальный подпор под ящиками. Освободилось место для широких коробок. На прочность конструкции это не повлияет, потому что мы будем крепить к стене всё: полки, тумбу, даже стойки. А на чужом проекте это корпусная мебель, сделанная из модулей.
Во-вторых, мы убрали высокий пол из ЛДСП. Он совершенно не нужен в гардеробной, потому что съедает полезную высоту и не даёт ближе подойти к штангам и высоким полкам.
В-третьих, была заменена вертикальная широкая стойка-боковина в углу помещения на вертикальную трубку.
Головная боль при проектировании мебели — это углы. К углам трудно подходить, неудобно вешать одежду или класть ее на полки. Вертикальные стойки ограничивают ваши движения, ты постоянно бьешься о них руками. Такие стойки ставят в корпусной мебели, чтобы верхние полки не упали вам на голову. Так как гардеробная у нас будет полностью встроенная, верхние полки будут намертво крепиться в распор к стенам. Металлические вертикальные трубки дадут хорошую поддержку и обеспечат некую свободу в движениях.
Екатерине очень понравился проект, она как раз такую и хотела, более лёгкую, но прочную конструкцию.
Можно придраться, сказав, что верхние полки закреплены на некрасивых больших уголках к стене. Да, согласен, эстетически они немного портят всё впечатление. Но когда вы положите на полки вещи, коробки, стопки с бельем, эти уголки скроются и не будут раздражать. Они необходимы для жесткости полок, чтобы те не прогибались по переднему краю.
Итак, конструкция устроила, стоимость тоже. В назначенный день я приехал на замер к клиентам. Снял нужные размеры, мне подписали договор и получил предоплату.
После этого я ещё раз на компьютере подогнал чертежи под реальные размеры помещения, показал клиенту, и мы начали производство. У себя в цеху мы распилили и закромили панели ЛДСП, собрали короб для ящиков и сами выдвижные ящики.
Сборка гардеробной у клиента заняла 3 полных дня. Дело в том, что многие детали (в основном полки) мы подпиливали (с пылесосом) и подтачивали дома. Стены в помещениях всегда неровные и имеют погрешности. Чтобы полки встали без щелей и держались прочно, их необходимо тщательно подогнать по месту.
Прибавим к этой особенности проблему со свободным местом для работы. В самой гардеробной пилить и точить невозможно, слишком тесно. Нам пришлось этим заниматься в узком коридоре. Каждую деталь заносить, примерять, выносить, точить, и так по нескольку раз. Процесс небыстрый.
Но что клиент получает в финале? Столько терпели, ждали, пока мы ее соберем, что же они получили?
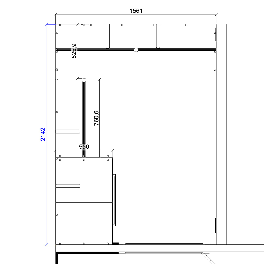
А получили просторную гардеробную, где нет съеденных драгоценных сантиметров полами, стойками и подпорами из ЛДСП.
Каждая полка закреплена к стене при помощи металлического полкодержателя и дюбеля с длинным саморезом. Это обеспечивает отличную прочность. Максимум, что может произойти с длинными полками, — это прогиб по переднему краю от большого веса. Под большим весом я подразумеваю 70 килограммов. Оторваться и обрушиться такая полка не может.
Вы можете подумать, что я просто нахваливаю нашу работу, преувеличиваю. Но на самом деле, по-настоящему встроенная мебель прочнее корпусной. Ради бога, не путайте корпусные шкафы, задвинутые в нишу и прикрученные дюбелями к стенам. Это псевдовстроенная мебель. По-настоящему встроенная мебель состоит из отдельных элементов (стойки, полки, доборы), подогнанных под конкретное место в помещении.
Минус такой мебели в том, что она делается раз и, можно сказать, навсегда. Ломаться в ней нечему, если только вы сами не захотите от нее избавиться. Разве что какие-то трущиеся механизмы выйдут из строя: например, направляющие у ящиков, пантографы, выдвижные кронштейны.
Сфотографировать данную гардеробную было сложно, даже со специальным объективом. Лучше посмотрите видеообзор, мы попробовали осветить все её характеристики. В кадре мой коллега и друг Григорий.





























