Стоимость 10.03.2024г. - 203650руб.
Автор – конструктор фирмы ДЭЗАЛТ Суханов Эдуард, отредактировано в AI Gemini.
Шкаф-купе в прихожую: как мы спрятали электрощит и сделали высоту 2900мм
Заказчица Екатерина поставила передо мной непростую задачу: нужно закрыть электрический и водяной щиты в стене прихожей так, чтобы они были скрыты, но к ним оставался быстрый доступ. Мне пришлось поломать голову, прежде чем мы с клиенткой пришли к общему знаменателю.
Что у нас получилось в итоге — смотрите на чертежах и фото ниже.
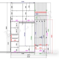
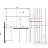
Задача и габариты
В прихожую требовался вместительный шкаф для хранения верхней одежды на всю семью. Было решено делать встроенный высокий шкаф-купе, так как классические распашные двери в этом узком месте занимали бы слишком много пространства.
Главная сложность — высота до натяжного потолка 2900 мм. Стандартный лист ЛДСП, из которого мы делаем мебель, имеет длину максимум 2800мм (а без учета чернового края — рабочая зона всего 2760мм).
Как мы решили проблему высоты?
Как чаще всего поступают мебельщики в таких случаях? Делают корпус составным, устанавливая сверху отдельную антресоль. Но я решил пойти другим путем, чтобы сохранить цельность конструкции:
1. Наращивание: Мы удлинили ламинированную плиту таким же куском «стык в стык», используя шканты и мебельный клей.
2. Маскировка: Наращенный участок боковины мы подняли под самый потолок. Там нет большой нагрузки, и стык практически не бросается в глаза.
3. Идеальное примыкание: Мы делаем боковины не только наращенными, но и с запасом по высоте на несколько сантиметров. Это позволяет уже на месте, при монтаже, аккуратно подрезать их под уровень натяжного потолка.
Благодаря такому подходу потолок буквально лежит на шкафу — нет никаких пылесборных щелей, выглядит это очень эстетично.
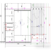
Наполнение шкафа
Внутри я предусмотрели блок выдвижных ящиков для мелочей: ключи, перчатки, туалетная вода, щетки для обуви, шарфы. Считаю, что в прихожей такие ящики обязательны — это очень удобно. Конечно, есть и классика: штанга для вешалок, полки для одежды и обуви.
Двери-купе сделали зеркальными по двум причинам:
- Во-первых, зеркало реально расширяет пространство, что для прихожей критически важно.
- Во-вторых, перед выходом из дома всегда нужно видеть себя в полный рост.
Самое сложное: открытая секция и скрытые люки
Перехожу к той самой головоломке. Нужно было сделать вешалку для текущей одежды и спрятать два технических люка, при этом не повредив коммуникации. Стена в этом углу буквально нашпигована проводами и трубами. Сверлить перфоратором наугад здесь нельзя. Приборы поиска проводки помогают, но они не дают 100% гарантии на глубине более 5 см.
Мое решение было следующим: Я использовал две вертикальные боковины в качестве базы.
- Левую (толщиной 16 мм) мы прикрутили к боковине самого шкафа.
- Правую (утолщенную, 32 мм) мы аккуратно закрепили к стене всего в нескольких безопасных точках.
На правую усиленную боковину мы навесили откидную дверцу на 6 петель — для прочности и чтобы избежать провисания. Фасад задекорировали вертикальными рейками. Чтобы рейки плавно переходил на верхнюю (неподвижную) часть, верхние планки мы наклеивали вручную прямо на месте, используя скотч и клей.
Доступ к коммуникациям
- Верхний люк (электрика): Спрятан за той самой откидной дверцей с рейками.
- Нижний люк (вода): Здесь я не придумал ничего лучше, чем сделать отдельную выдвижную тумбу. Когда сантехнику нужен доступ к трубам, тумба просто вытаскивается на себя. Кстати, в ней тоже есть полезный выдвижной ящик.
Обязательно посмотрите видеообзор ниже. Мой коллега Григорий покажет всё в действии: откроет двери, выдвинет тумбу и снимет полку.
Нюанс, который мне не нравится
Хочу быть честным. Единственный спорный момент в этой конструкции — полки над крючками. Я бы не стал их делать, но Екатерина настояла. Нижняя полка должна быть съемной (для доступа к люку), и мне пришлось использовать металлические полкодержатели. К сожалению, их видно, и это немного портит идеальный вид открытой секции. Но функционал здесь победил дизайн.
P.S. Минутка юмора
После видеоролика я приложил фотографию «памятки», которую оставили на щитке строители, делавшие ремонт. Мы прекрасно понимаем, что русский язык для них не родной, и относимся к этому без негатива. Но звучит это настолько забавно (одни «Болерника» и «Холодил» чего стоят!), что я просто обязан поделиться этим с вами для поднятия настроения.

































