Автор – конструктор фирмы ДЭЗАЛТ Суханов Эдуард, отредактировано в AI Gemini.
Двери-купе в прихожую частного дома: когда «просто двери» — это совсем не просто
Место установки: Частный дом, зона прихожей. Задача: Визуально отделить хозяйственную зону (сетчатые полки с одеждой и холодильники) от входной зоны.
В этом проекте мы установили комплект раздвижных дверей-купе. Это практичное и удобное решение, чтобы закрыть широкий проем и спрятать содержимое полок, не загромождая прихожую.
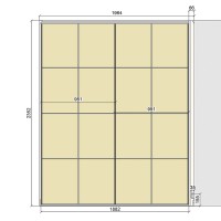
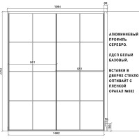
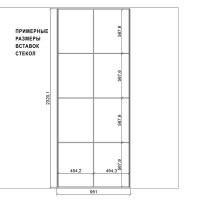
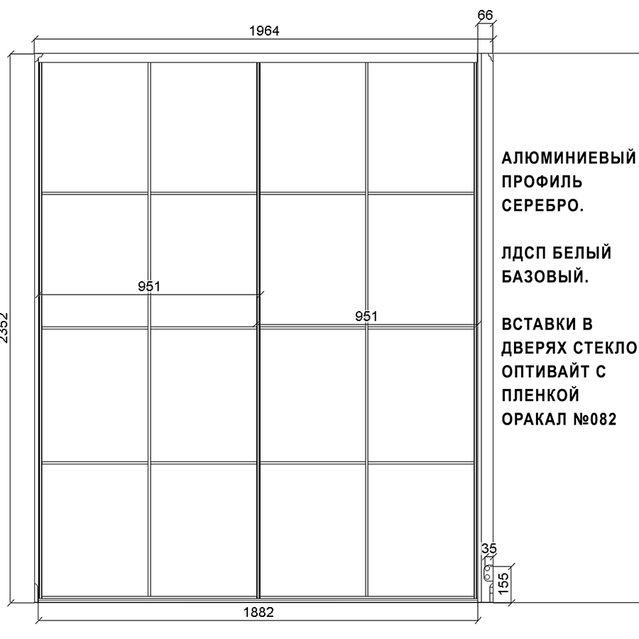
Внешне всё выглядит лаконично: три двери со стеклом спокойного бежевого оттенка, которые аккуратно скрывают содержимое ниши.
Посмотрите короткий видеообзор, где Григорий показывает работу механизмов и общий вид конструкции.
А теперь — о том, что скрыто за кадром (для тех, кто любит детали)
Многие, глядя на фото скажут: «Ну, обычные двери, что тут такого? Можно пойти в строительный гипермаркет и купить готовые».
Если бы всё было так просто, наша профессия давно бы вымерла. «Готовые» решения работают только в идеально ровных проемах без труб, плинтусов и с бетонными потолками. В реальности же каждый монтаж — это решение уравнения с несколькими неизвестными.
В этом заказе было несколько нюансов, которые потребовали профессионального подхода. О них я расскажу ниже.
1. Муки выбора: подвесная система или нижне-опорная?
Это первый вопрос, который мы решаем на замере.
• Подвесная система: Двери висят на верхнем рельсе, внизу на полу ничего нет. Красиво, удобно мыть пол.
• Нижне-опорная система: Двери катаются по нижнему треку, который лежит на полу. Вся нагрузка идет вниз.
Клиентам часто нравится подвесная — из-за отсутствия «порожка» на полу. Но есть жесткое ограничение: подвесную систему нельзя вешать на гипсокартон. Гипсокартон, даже в несколько слоев, не выдержит динамической нагрузки (постоянных толчков при открывании тяжелых дверей). Ему нужен бетон или мощный закладной брус.
Наше решение: В этом доме потолок был из гипсокартона. Рисковать мы не имеем права, поэтому единственный надежный вариант — нижне-опорная система.
Да, на полу появляется трек высотой 8 мм. Но он имеет скругленную форму, об него сложно споткнуться, и на него можно спокойно наступать. Зато такая система в прихожей (где песок и пыль) прослужит минимум лет 7-10 до замены роликов. А заменить их потом сможет даже сам хозяин за 15 минут. Подвесные системы (особенно недорогие китайские) в таких условиях начинают скрипеть и люфтить гораздо раньше.
2. Обход труб отопления и кривой пол
В частных домах коммуникации часто идут открытым способом. Здесь по правой стене проходили трубы отопления.
• Проблема: Нельзя, чтобы дверь при закрывании билась о трубы.
• Решение: Мы спроектировали и установили специальный короб из ЛДСП (шириной 66 мм), который закрыл трубы. Дверь-купе теперь мягко паркуется в этот короб. Это и эстетично, и безопасно для труб.
На левой стене мы тоже установили ответную планку из ЛДСП. Это нужно, чтобы дверь не терлась о стену (обои или краска быстро сотрутся) и чтобы красиво состыковаться с плинтусом, без дыр и щелей.
Нюанс с полом: Перепад уровня пола в прихожей составлял 8 мм. Мы использовали систему профилей «Слим», ролики которой позволяют компенсировать неровности до 20 мм. Двери стоят идеально ровно, несмотря на уклон плитки.
3. «Лакобель» или хитрость с пленкой?
Клиенты не хотели видеть свое отражение в прихожей (зеркала отпали), но и простое ЛДСП казалось им скучным. Им нравилось крашеное стекло «Лакобель» (Lacobel). Это красиво, но дорого.
Наше решение: Мы предложили альтернативу. Взяли обычное стекло и наклеили на него с обратной стороны цветную пленку Oracal (цвет №082, приятный бежевый).
• Вид: Практически неотличим от дорогого крашеного стекла.
• Цена: Значительно приятнее.
• Безопасность: Пленка работает как «броня». Если случайно разбить дверь тяжелым предметом, осколки не разлетятся по прихожей, а останутся висеть на пленке.
Итог: Казалось бы, «просто двери». Но чтобы они стояли ровно, ездили плавно и служили долго в доме с гипсокартонным потолком и трубами вдоль стен, потребовался точный замер, индивидуальное проектирование коробов и грамотный подбор материалов.






























