Автор – конструктор фирмы ДЭЗАЛТ Суханов Эдуард, отредактировано в AI Gemini.
Начну с главного — с заказчиков. Для этой семьи мы делаем мебель уже много лет, и за это время из разряда клиентов они давно перешли в статус хороших друзей. Ни один наш приезд к ним не обходится без душевного застолья: обязательно накормят, напоят, всё по высшему разряду. Нам даже бывало неловко от такого радушия, так что со своей стороны мы тоже пару раз накрывали для них стол.
Это очень простые, доброжелательные и искренние люди. Светлана — невероятно гостеприимная и легкая в общении хозяйка, а Сергей — настоящая ходячая энциклопедия, с ним безумно интересно обсуждать любые темы. Пожалуй, это та самая семья, которую мы реально любим и вспоминаем только с улыбкой. Мы с Григорием не раз ездили к ним в гости даже просто так, посидеть и поболтать. Удивительно теплые отношения у нас сложились.
В этот раз им понадобился шкаф для одежды в их новую однокомнатную квартиру. Место для дивана уже было определено (ближе к окну), а вот в углу комнаты оставалось пустое пространство. Вообще, угловые шкафы мало кто любит из-за их громоздкости, но в данном случае семья решила, что это будет самое разумное решение. Чтобы мебель не давила своим присутствием, выбрали светлые тона и совместно спроектировали вот такую аккуратную конструкцию.
Немного технической кухни. Самое правильное решение для угловой конструкции — это разместить в самом углу штангу. Почему не полки? Потому что тянуться туда будет крайне неудобно, доступ в глубину получается плохой. А вот повесить на штангу несезонные вещи, которые сейчас не носятся — идеальный вариант.
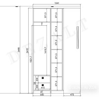
Важно понимать, что угловые секции всегда требуют большого пространства! Обратите внимание на планировку: наш шкаф спроектирован так, чтобы его наружная видимая боковина была глубиной 475 мм. Это значит, что в соседней секции мы физически не сможем разместить привычную продольную штангу для плечиков — для нее нужно минимум 500–550 мм глубины. Зато благодаря такому размеру все три двери получились одинаковой ширины, и фасад смотрится максимально гармонично. В левой приставной секции, по желанию Светланы, мы установили выдвижную (поперечную) штангу для легкой одежды.
По фурнитуре: я предложил использовать петли с увеличенным радиусом открывания. К сожалению, поставить их получилось только на правую дверь. Если бы мы закрепили их на левой колонке, они бы мешали выдвижным ящикам — ящики пришлось бы сильно заужать, и они стали бы совсем бесполезными. На центральную угловую дверь мы подобрали специальные петли для развернутого угла.
Важный технический нюанс: абсолютно все секции стоят на скрытых регулируемых по высоте опорах. Для корпусной мебели критически важен идеальный уровень, а ремонты с идеально ровными полами встречаются редко. Чтобы нивелировать любую кривизну пола и выставить шкаф строго по горизонту и вертикали, мы применяем итальянские регулируемые опоры. Когда нет перекосов корпуса, фасады не провисают, и мебель служит в разы дольше.
Сейчас вы можете посмотреть подробный видеообзор нашей работы. Но предупреждаю сразу: в кадр попало далеко не всё!
Чуть позже нам дозаказали комод и еще одну дополнительную секцию к этому шкафу.
Это нормальная практика: семье нужно было немного пожить в новой квартире, обжиться и прикинуть, чего именно еще не хватает. И когда они поняли, что требуется дополнительное место для хранения, они дозаказали мебель точно такого же цвета, с такими же ручками и на таких же надежных опорах. Кстати, на новую, четвертую секцию шкафа мы тоже поставили удобные петли с увеличенным углом открывания.
Ниже на фотографиях вы можете посмотреть, как выглядит итоговый результат: шкаф из четырех секций и отдельный вместительный комод.




































